

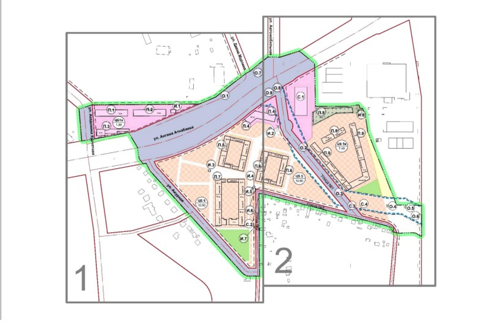
Площадь территории составляет 29,4 гектара. Она занята в основном лугами и местами кустарниками. Также на участке расположено здание торгового дома «Башспирт», оно сохранится.
На территории планируется возвести четыре многосекционных жилых дома высотой от 7 до 18 этажей. Кроме того, здесь появятся 8-этажный торговый центр, 10-этажное многофункциональное здание с поликлиникой и 9-этажная парковка.